• GARAŻ DWUSTANOWISKOWY F06B

Formalności urzędowe dla budynków gospodarczych
Na pozwolenie
Kosztorys
1200.00
szt. Do przechowalni
Wysyłka w ciągu 24 godziny
Cena przesyłki 0
Kurier (Pobranie) 0
Kurier 0
Odbiór osobisty 0

Zamówienie telefoniczne: 505808612

Zostaw telefon

GARAŻ DWUSTANOWISKOWY F06B

 

 Dostępne wersje projektu:

  - wersja podstawowa lub odbicie lustrzane

  - budynek garażowy lub budynek gospodarczy

  (w uwagach przy zamówieniu proszę podać wybraną wersję budynku oraz przeznaczenie)

 

  • Projekt w nowej formie 3+3. Zgodnie ze zmianą w Prawie Budowlanym 2021,  w skład dokumentacji wchodzą 3 egzemplarze projektu architektoniczno-budowlanego oraz 3 egzemplarze projektu technicznego.
  • Darmowa wysyłka projektu.
  • Zwrot projektu do 30 dni
  • Wymiana projektu do 120 dni   
  • Bezpłatna zgoda na zmiany w projekcie

 

DANE TECHNICZNE BUDYNKU:

 

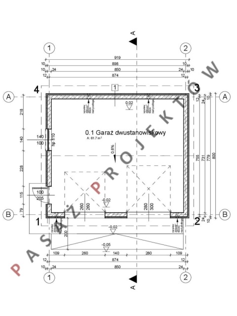
POWIERZCHNIA GARAŻU DWUSTANOWISKOWEGO:                        61,70 m2

 


POWIERZCHNIA PODŁÓG                                                                                            61,70 m2

POWIERZCHNIA ZABUDOWY                                                                                     73,52 m2

POWIERZCHNIA CAŁKOWITA                                                                                     73,52 m2

KUBATURA                                                                                                                    361,81 m3

WYSOKOŚĆ BUDYNKU                                                                                                    6,00 m

KĄT NACHYLENIA DACHU                                                                                                  30°

WYMIARY BUDYNKU (szerokość x długość)                                                9,19 m x 8,00 m

MINIMALNE WYMIARY DZIAŁKI (szerokość x długość)                         16,19 m x 15,00 m

ILOŚĆ KONDYGNACJI                                                                                                          1 

 


KONSTRUKCJA I ZASTOSOWANE MATERIAŁY:

- fundamenty- ława żelbetowa

- ściany piwnicy- bloczki betonowe lub pustaki zasypowe gr 24 cm

- ściany nadziemia- pustak ceramiczny gr 24 cm

- dach- dwuspadowy symetryczny, więźba drewniana, pokrycie blachodachówką

 


PROGRAM FUNKCJONALNO-UŻYTKOWY:

Projekt przedstawia jednokondygnacyjny garaż dwustanowiskowy, zaprojektowany na rzucie prostokąta i przykryty dwuspadowym dachem.

Prosta, zwarta bryła budynku sprawia, że jest on łatwy i ekonomiczny w budowie, a jednocześnie funkcjonalny i nowoczesny w użytkowaniu.

Na parterze zaplanowano przestronny garaż z dwoma stanowiskami postojowymi, przeznaczony dla pojazdów o dużych gabarytach.

Dzięki wysokości użytkowej 3,47 m obiekt może być w przyszłości zaadaptowany na różnego rodzaju działalność usługową, np. warsztat samochodowy, punkt serwisowy lub magazyn.

Na elewacji frontowej umieszczono dwie bramy garażowe o zróżnicowanych wymiarach:

  • pierwsza o szerokości 2,6 m i wysokości 2,6 m,

  • druga o szerokości 2,8 m i wysokości 3,0 m,
    co zapewnia komfortowy wjazd nawet dla wyższych pojazdów.

Na ścianie bocznej zaprojektowano dodatkowe drzwi wejściowe prowadzące bezpośrednio do wnętrza garażu oraz okna, które zapewniają naturalne doświetlenie pomieszczenia i poprawiają komfort codziennego użytkowania.

Wnętrze stanowi jedno przestronne i funkcjonalne pomieszczenie, umożliwiające nie tylko parkowanie dwóch samochodów, ale także wygodne rozmieszczenie regałów, narzędzi czy sprzętu warsztatowego.

Projekt łączy w sobie nowoczesną estetykę, prostotę wykonania i możliwość elastycznej adaptacji, co czyni go doskonałym wyborem dla osób poszukujących solidnego, praktycznego i uniwersalnego garażu.

 

Jeżeli spodobał się Państwu projekt garażu,  jednak nie do końca odpowiada Wam jakiś parametr np. szerokość, długość, wysokość itp. - my wykonamy dla Was projekt ze zmianą w konkurencyjnej cenie.

Uwaga! Ze względu na bardzo duże zainteresowanie, oferta na zmiany w projektach nie jest dostępna stale!

 

 

Powierzchnia użytkowa:
poniżej 80 m2
Kondygnacje:
parterowy
Dach:
dwuspadowy
Garaż:
2- stanowiskowy
Piwnica:
Nie
Przeznaczenie garażu:
Dla aut osobowych i ciężarowych
Technologia:
Murowana
Ilość bram:
2

Informacje dotyczące bezpieczeństwa

Nie dotyczy

Nie ma jeszcze komentarzy ani ocen dla tego produktu.